板野町大寺字苅辺裏の新築一戸建て 建物30.01坪
この物件のお支払い例 頭金/ボーナス払い0円 頭金0円
- 物件価格
- 2,080万円
- 月々の支払い
(初回お支払額)
-
{{ monthlyPayment?.toLocaleString() }}円
※上記支払例の借入条件:金利{{ loanInterestRate }}%、借入総額2,080万円(うちボーナス払い{{ loanBonusMan }}{{ loanBonusUnit }}円)、借入期間{{ loanTerm }}年、{{ loanPaymentMethodName }}返済方式、ボーナス支払額(初回){{ bonusPayment?.toLocaleString() }}円
支払いシミュレーション
- 万円
- 万円
- %
- 万円
| ボーナス払い | {{ loanTerm }}年 |
|---|---|
| 0万円 | |
| 5万円 | |
| 10万円 | |
| 15万円 | |
| 20万円 | |
| 25万円 | |
| 30万円 | |
| 35万円 | |
| 40万円 | |
| 45万円 | |
| 50万円 |
所在地・交通
| 所在地 | 徳島県板野郡板野町大寺字苅辺裏 | ||
|---|---|---|---|
| 交通 |
JR高徳線 板野駅 徒歩19分 (1520m) |
その他交通 | |
| 小学校校区 |
板野町立板野東小学校 |
中学校校区 |
板野町立板野中学校 |
※学校区は住所から自動判定したものであり、保証できる情報ではございません。正確な学校区はお問い合わせ下さい。
「人型アイコン」を地図上にドラッグすることで『Google ストリートビュー』に切り替わります。
※地図上の「対象地」は「徳島県板野郡板野町大寺字苅辺裏 」付近を示しています。実際の場所ではない場合がございます。詳しくはお問い合わせください。
物件概要
| 価格 |
2,080万円
|
種目 | 新築一戸建て |
|---|---|---|---|
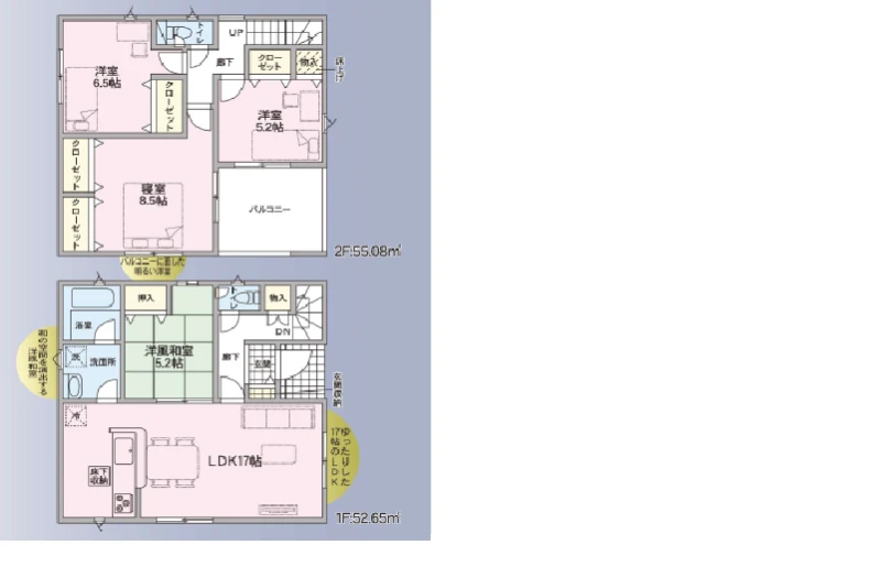
| 間取り | 4LDK | 間取り向き | |
| 土地面積 | 169.55㎡(公簿) | 私道面積 | 私道負担面積無 |
| 建物面積 | 99.22㎡ | 建物構造規模 |
木造 2階建 |
| バルコニー面積 | バルコニー向き | ||
| 築年月(竣工月) | 2026年 4月 | 駐車場 | 有 (2台) |
| 総戸数・総区画数 | 販売戸数・販売区画数 | ||
| 接道状況 |
一方 東 間口14.4m 公道 幅5m |
||
| 地目 | 宅地 | ||
| 建ぺい率/容積率 | 32% / 63% | 都市計画 | 都市計画区域外 |
| 土地権利 | 所有権 | 地勢 | 平坦 |
| 用途地域 | 無指定 | 国土法 | 不要 |
| 現況 | 建築中 | 取引態様 | 媒介 |
| 建築確認番号 | 第R07SHC122593号 | ||
取引条件等
| 引渡し | 相談 |
|---|
その他
| 設備 | ガスその他、電気、上水道、浄化槽、システムキッチン、カウンターキッチン、浄水器、IHクッキングヒーター、給湯、トイレ2箇所、温水洗浄便座、シャンプードレッサー、浴室乾燥機、フローリング、複層ガラス、ルーフバルコニー、オール電化、収納スペース、床下収納、ディンプルキー、モニタ付インターホン、火災警報器等設置済、室内洗濯機置場、駐車2台可、バス・トイレ別 | ||
|---|---|---|---|
| 特徴 | 24時間換気システム | ||
| 諸条件・相談 | |||
| 情報登録日 | 2026年3月9日 | 情報更新予定日 | 2026年6月7日 |
| 物件番号 | 912809 | ||