スタッフコラムをご覧の皆様、こんにちは!
本日は新規売出しとなりました新築戸建をご紹介します。
★北島町新喜来字ヒカタの新築一戸建て 価格2,280万円(税込み)
☆4LDK
2026年2月に完成の物件!システムキッチン、オール電化、乾燥機付ユニットバス、TVモニター付インターホン、うれしい防犯カメラ、人感センサー付玄関灯、駐車場2台可!
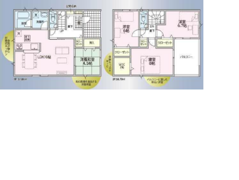
最寄りバスまで384m(徒歩5分)、最寄り駅まで2229m(徒歩28分)、北島北小学校まで1400m(徒歩19分)、北島中学校まで2000m(徒歩25分)、ザ・ビッグ北島まで2458m(徒歩31分)、ミニストップ北島新喜来店まで981m(徒歩13分)でアクセスしやすい地域です。玄関収納、あると便利な廊下収納、ゆったりした16帖のLDK、リビングと隣接した和室、バルコニーに面した明るい洋室、各部屋に収納あり、主寝室には2帖のWICあり。
外観写真はコチラです↓↓

間取りはコチラです↓↓

内装はコチラです↓↓





今回ご紹介させて頂きました物件の他にも株式会社プラスナイス藍住・北島不動産モールでは物件を多く取り扱いしていますので、ご興味ある方はぜひお問合せ・ご来店下さい!!
:+:-:+:-:+:-:+:-:+:-:+:-:+:-+:-+:-+:-+:-+
藍住・北島不動産モール | 株式会社プラスナイス
地域密着型の信頼できる不動産情報を提供しています。
住宅購入、売却、リノベーションの 最新情報や役立つアドバイスをブログでお届けします。
公式サイト: https://www.tokushima-fudousanmall.jp
Instagram: @plusnice.jp
お問い合わせ: plusnice@nice-reform.jp
住所: 〒771-1201 徳島県板野郡藍住町奥野乾128−1
電話: 088-692-0051
:+:-:+:-:+:-:+:-:+:-:+:-:+:-+:-+:-+:-+:-